2 Bedroom Bungalow

The 2 Bedroom Bungalows

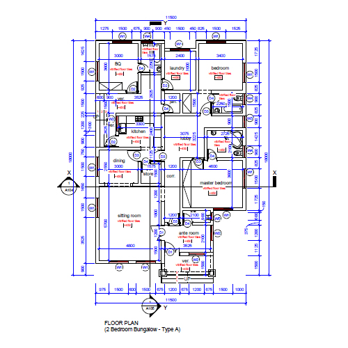
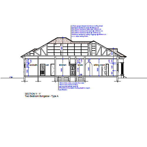
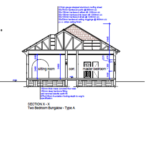
The 2 bedroom bungalows for low income earners – This is an all-en-suite two (2+1) standard sized bedrooms fully detached house designed with capacity to easily transit from a basic house to a luxurious home in style. It is sitting on 310sqm land space. The rooms come with wall-to-wall wardrobes; master's bedroom is created to accommodate a Jacuzzi; a sizable living room with an ante-room and guest toilet; a dinning room; a large sized kitchen space with a store; and also, a laundry with a janitor. Special features: An elastic elegant design, purposed for a progressive lifestyle assured by a number of strategic design factors and also by having the boys quarter's room en-suite and attached to the main house as a purpose collapsible module.

This allows the house to be easily convertible to a luxurious three (3) bedroom home for a growing family and; it can also be returned to its original compact design for a retiring person or a shrinking family size. All of these amazing features can be enjoyed without tampering with the external design of the building or encroaching into the purposeful large external spaces allowed for vehicle parking, gardening and children playing ground.

>